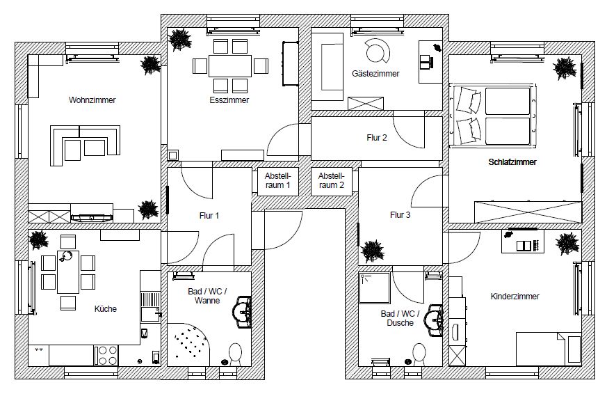
Beispiele Wohnungsumbau
Am Schlackenweg
4 Raumwohnung
Etage:
Größe:
Anteile:
3. WG links
120,0 m²
5 = 800,00 €
Vorhanden:
Bad mit Badewanne
Bad mit Dusche
Wohn-/Esszimmer
Gästezimmer
Abstellräume
Kammer
Keller







Außenansicht
Innenansicht
Küche
Wohn-/Esszimmer
Flur & Gästezimmer
Schlafzimmer
Kinderzimmer
Bad mit Dusche
